|
|
|
|
|
|
|
|
|
|
|
|
|
 |
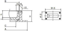
形式(例)
| 製品符号 |
サイズ |
| MSCS1S |
350 |
|
|
|
 |
製品情報
・t寸法は、有効肉厚を示します。
・350は取手1個、750は取手4個付です。
・取手下部に掃除口キャップが付属します。 |
MSCS-S 部品明細表
| No. |
名称 |
材質 |
備考 |
| 1 |
フ タ |
FC200 |
CSコート |
| 2 |
枠 |
| 3 |
目 地 |
SUS304 |
- |
| 4 |
取 手 |
| 5 |
アンカー |
SS400 |
| 6 |
パッキン |
ネオスポンジ |
|
 |
|
|
● 寸法・価格一覧表 ●
| 形式 |
税込価格 |
適用
荷重 |
寸法一覧表 mm |
仕上材
充填時の
蓋質量 kg |
総質量
kg |
|
| A |
B |
C |
D |
P1 |
P2 |
H |
h |
t |
| MSCS-1S 300 |
¥31,380 |
中荷重 |
380 |
300 |
256 |
490 |
352 |
210 |
56 |
35 |
5.5 |
約15 |
14.0 |
|
| MSCS-1S 350 |
¥34,530 |
414 |
350 |
306 |
542 |
260 |
402 |
56 |
35 |
7.5 |
約19
|
20.2 |
| MSCS-1S 450 |
¥45,180 |
520 |
450 |
406 |
640 |
340 |
500 |
56 |
35 |
8 |
約32 |
28.6 |
| MSCS-1S 600 |
¥63,510 |
680 |
600 |
560 |
794 |
580 |
654 |
61 |
39 |
9 |
約62 |
49.0 |
| MSCS-1S 750 |
¥144,780 |
828 |
750 |
700 |
950 |
550 |
810 |
77 |
54 |
10 |
約118
|
81.8 |
| MSCS-2S 300 |
¥29,050 |
軽荷重 |
352 |
300 |
256 |
490 |
210 |
350 |
56 |
37 |
5.5 |
約12 |
12.0 |
|
| MSCS-2S 350 |
¥32,510 |
414 |
350 |
306 |
542 |
260 |
402 |
56 |
37 |
5.5 |
約17 |
18.4 |
| MSCS-2S 450 |
¥42,090 |
520 |
450 |
406 |
640 |
340 |
500 |
56 |
37 |
6 |
約30 |
26.2 |
| MSCS-2S 600 |
¥55,700 |
680 |
600 |
560 |
794 |
580 |
654 |
61 |
41 |
7 |
約56 |
43.1 |
| MSCS-2S 750 |
¥114,350 |
828 |
750 |
700 |
950 |
550 |
810 |
77 |
54 |
8 |
約109 |
73.3 |
|
| *適用ハンドルA2は別売り。 |
|
|
 |
|
| 品名 |
税込価格 |
|
| A2マンホールハンドル |
¥2,210/組
(2本1組) |
|
|
|
|
|
|
|
 |
H付=ハンドル付
Hなし=ハンドルなし
形式(例)
| 製品符号 |
サイズ |
ハンドル |
| MSCS1SL |
50 |
H付 |
| MSCS1SL |
350 |
Hなし |
|
|
|
 |
製品情報
・t寸法は、有効肉厚を示します。
・350、450は取手2個、600、750は取手4個付です。 |
MSCS-L 部品明細表
| No. |
名称 |
材質 |
備考 |
| 1 |
フ タ |
FC200 |
CSコート |
| 2 |
枠 |
| 3 |
目 地 |
SUS304 |
- |
| 4 |
取 手 |
| 5 |
アンカー |
SS400 |
| 6 |
パッキン |
ネオスポンジ |
|
 |
|
|
● 寸法・価格一覧表 ●
| 形式 |
税込価格 |
適用
荷重 |
寸法一覧表 mm |
仕上材
充填時の
蓋質量 kg |
総質量
kg |
|
| ハンドルなし |
ハンドル付 |
A |
B |
C |
D |
P1 |
P2 |
H |
h |
t |
| MSCS-1SL 350 |
¥45,240 |
¥47,130 |
中荷重 |
414 |
350 |
306 |
542 |
260 |
402 |
56 |
35 |
7.5 |
約19 |
20.2 |
|
| MSCS-1SL 450 |
¥57,460 |
¥59,350 |
520 |
450 |
406 |
640 |
340 |
500 |
56 |
35 |
8.0 |
約32
|
28.6 |
| MSCS-1SL 600 |
¥81,210 |
¥83,100 |
680 |
600 |
560 |
794 |
580 |
654 |
61 |
39 |
9.0 |
約61 |
49.0 |
| MSCS-1SL 750 |
¥170,170 |
¥172,060 |
828 |
750 |
700 |
950 |
550 |
810 |
77 |
54 |
10.0 |
約117
|
81.8 |
| MSCS-2SL 300 |
¥40,320 |
¥42,210 |
軽荷重 |
352 |
300 |
256 |
490 |
210 |
350 |
56 |
37 |
5.5 |
約12 |
12.0 |
|
| MSCS-2SL 350 |
¥41,650 |
¥43,540 |
414 |
350 |
306 |
542 |
260 |
402 |
56 |
37 |
5.5 |
約17 |
18.4 |
| MSCS-2SL 450 |
¥53,180 |
¥55,070 |
520 |
450 |
406 |
640 |
340 |
500 |
56 |
37 |
6.0 |
約30 |
26.2 |
| MSCS-2SL 600 |
¥74,470 |
¥76,360 |
680 |
600 |
560 |
794 |
580 |
654 |
61 |
41 |
7.0 |
約55 |
43.1 |
| MSCS-2SL 750 |
¥137,530 |
¥139,420 |
828 |
750 |
700 |
950 |
550 |
810 |
77 |
54 |
8.0 |
約109 |
73.3 |
|
| *適用ハンドルY。 |
|
|
 |
|
| 品名 |
税込価格 |
|
| Yマンホールハンドル |
¥1,950/組
(2本1組) |
|
|
|
| |
|
|
 |
形式(例)
| 製品符号 |
サイズ |
| MSCS-1HS |
450 |
|
|
|
 |
製品情報
・t寸法は、有効肉厚を示します。
・取手下部に掃除口キャップが付属します。 |
MSCS-HS 部品明細表
| No. |
名称 |
材質 |
備考 |
| 1 |
フ タ |
FC200 |
CSコート |
| 2 |
枠 |
| 3 |
目 地 |
SUS304 |
L15×15×3 |
| 4 |
取 手 |
- |
| 5 |
アンカー |
SS400 |
| 6 |
パッキン |
ネオスポンジ |
|
 |
|
|
● 寸法・価格一覧表 ●
| 形式 |
税込価格 |
適用
荷重 |
寸法一覧表 mm |
仕上材
充填時の
蓋質量 kg |
総質量
kg |
|
| A |
B |
C |
D |
P1 |
P2 |
H |
h |
t |
| MSCS-1HS 450 |
¥55,820 |
中荷重 |
520 |
450 |
406 |
640 |
340 |
500 |
53 |
31 |
8.0 |
約30 |
28.8 |
 |
| MSCS-1HS 600 |
¥74,470 |
680 |
600 |
560 |
794 |
580 |
654 |
58 |
36 |
9.0 |
約58
|
49.4 |
| MSCS-2HS 450 |
¥52,550 |
軽荷重 |
520 |
450 |
406 |
640 |
340 |
500 |
53 |
33 |
6.0 |
約28 |
26.4 |
| MSCS-2HS 600 |
¥70,120 |
680 |
600 |
560 |
794 |
580 |
654 |
58 |
38 |
7.0 |
約53 |
43.5 |
|
| *適用ハンドルA2は別売り。 |
|
|
 |
|
| 品名 |
税込価格 |
|
| A2マンホールハンドル |
¥2,210/組
(2本1組) |
|
|
|
| |
|
|
 |
|
H付=ハンドル付
Hなし=ハンドルなし
形式(例)
| 製品符号 |
サイズ |
ハンドル |
| MCDW-1HS |
450 |
H付 |
| MCDW-1HS |
450 |
Hなし |
|
|
|
|
|
製品情報
・充填深さは40mmですので、30mmまでの人造石、クリンカタイル、モザイクタイル、磁器タイル等が貼り付けられます。
・ステンレスL目地付です。
・パッキン付が標準です。 |
MC-W-HS 部品明細表
| No. |
名称 |
材質 |
備考 |
| 1 |
MCDW-1HSフタ |
FCD500-7 |
CSコート |
| MCAW-1HSフタ |
FC200 |
| MCAW-2HSフタ |
| 2 |
枠 |
| 3 |
パッキン |
エチレン
プロピレンゴム |
- |
| 4 |
取 手 |
SUS304 |
| 5 |
キャップ |
| 6 |
目 地 |
| 7 |
アンカー |
SS400 |
| 8 |
ボルト |
SUS304 |
M12 |
|
 |
|
|
● 寸法・価格一覧表 ●
| 形式 |
税込価格 |
適用荷重 |
寸法一覧表 mm |
仕上材
充填時の
蓋質量
kg |
総質量
kg |
|
| フタ |
枠 |
| ハンドルなし |
ハンドル付 |
B |
C |
h |
A |
D |
E |
F |
P1 |
P2 |
H |
| MCDW-1HS 300 |
¥63,190 |
¥65,970 |
重荷重 |
360 |
330 |
40 |
392 |
300 |
460 |
570 |
250 |
430 |
70 |
約28 |
24.60 |
 |
| MCDW-1HS 350 |
¥68,990 |
¥71,760 |
410 |
380 |
40 |
442 |
350 |
510 |
620 |
300 |
480 |
70 |
約32 |
28.70 |
| MCDW-1HS 450 |
¥95,390 |
¥97,280 |
510 |
480 |
40 |
542 |
450 |
610 |
720 |
340 |
580 |
70 |
約40 |
37.9 |
| MCDW-1HS 600 |
¥117,440 |
¥119,330 |
660 |
630 |
40 |
692 |
600 |
760 |
870 |
490 |
730 |
70 |
約68 |
56.2 |
| MCAW-1HS 300 |
¥59,730 |
¥62,500 |
中荷重 |
360 |
330 |
40 |
392 |
300 |
460 |
570 |
250 |
430 |
70 |
約29 |
25.40 |
 |
| MCAW-1HS 350 |
¥68,300 |
¥71,070 |
410 |
380 |
40 |
442 |
350 |
510 |
620 |
300 |
480 |
70 |
約33 |
29.60 |
| MCAW-1HS 450 |
¥85,870 |
¥87,760 |
510 |
480 |
40 |
542 |
450 |
610 |
720 |
340 |
580 |
70 |
約42 |
39.6 |
| MCAW-1HS 600 |
¥107,230 |
¥109,120 |
660 |
630 |
40 |
692 |
600 |
760 |
870 |
490 |
730 |
70 |
約72 |
60.2 |
| MCAW-2HS 300 |
¥49,460 |
¥52,230 |
軽荷重 |
360 |
330 |
40 |
392 |
300 |
460 |
570 |
250 |
430 |
70 |
約29 |
25.00 |
 |
| MCAW-2HS 350 |
¥63,630 |
¥66,410 |
410 |
380 |
40 |
442 |
350 |
510 |
620 |
300 |
480 |
70 |
約33 |
29.10 |
| MCAW-2HS 450 |
¥83,730 |
¥85,620 |
510 |
480 |
40 |
542 |
450 |
610 |
720 |
340 |
580 |
70 |
約41 |
39.0 |
| MCAW-2HS 600 |
¥102,880 |
¥104,770 |
660 |
630 |
40 |
692 |
600 |
760 |
870 |
490 |
730 |
70 |
約72 |
60.0 |
|
*300・350の適用ハンドルはF、450・600の適用ハンドルはYになります。
|
|
|
 |
|
| 品名 |
適用サイズ |
税込価格 |
|
| Fマンホールハンドル |
300・350 |
¥2,860/組
|
|
| Yマンホールハンドル |
450・600 |
¥1,950/組
|
|
|
| |
|
|
 |
|
H付=ハンドル付
Hなし=ハンドルなし
形式(例)
| 製品符号 |
サイズ |
ハンドル |
| MCD-1HS |
450 |
H付 |
| MCD-1HS |
450 |
Hなし |
|
|
|
|
製品情報
・充填深さは40mmですので、30mmまでの人造石、クリンカタイル、モザイクタイル、磁器タイル等が貼り付けられます。
・ステンレスL目地付です。
・パッキン付が標準です。
・取手数は呼称450は2個、600、750は4個です。 |
MC-HS 部品明細表
| No. |
名称 |
材質 |
備考 |
| 1 |
MCD-1HSフタ |
FCD500-7 |
CSコート |
| MCA-1HSフタ |
FC200 |
| MCA-2HSフタ |
| 2 |
枠 |
| 3 |
パッキン |
エチレン
プロピレンゴム |
- |
| 4 |
キャップ |
SUS304 |
| 5 |
目 地 |
| 6 |
アンカー |
SS400 |
|
 |
|
|
● 寸法・価格一覧表 ●
| 形式 |
税込価格 |
適用
荷重 |
寸法一覧表 mm |
仕上材
充填時の
蓋質量 kg |
総質量
kg |
|
| フタ |
枠 |
| ハンドルなし |
ハンドル付 |
B |
C |
h |
A |
D |
E |
F |
P1 |
P2 |
H |
| MCD-1HS 300 |
¥57,520 |
¥60,300 |
重荷重 |
360 |
330 |
40 |
392 |
300 |
460 |
570 |
250 |
430 |
70 |
約28 |
24.60 |
|
| MCD-1HS 350 |
¥58,970 |
¥61,740 |
410 |
380 |
40 |
442 |
350 |
510 |
620 |
300 |
480 |
70 |
約32 |
28.70 |
| MCD-1HS 450 |
¥62,690 |
¥65,460 |
510 |
480 |
40 |
542 |
450 |
610 |
720 |
340 |
580 |
70 |
約41 |
37.0 |
| MCD-1HS 600 |
¥79,380 |
¥82,160 |
660 |
630 |
40 |
692 |
600 |
760 |
870 |
490 |
730 |
70 |
約71 |
57.3 |
| MCD-1HS 750 |
¥183,330 |
¥186,110 |
810 |
780 |
40 |
842 |
750 |
910 |
1020 |
600 |
880 |
70 |
約114 |
93.0 |
| MCA-1HS 300 |
¥40,700 |
¥43,470 |
中荷重 |
360 |
330 |
40 |
392 |
300 |
460 |
570 |
250 |
430 |
70 |
約29 |
25.40 |
|
| MCA-1HS 350 |
¥46,690 |
¥49,460 |
410 |
380 |
40 |
442 |
350 |
510 |
620 |
300 |
480 |
70 |
約33 |
29.60 |
| MCA-1HS 450 |
¥53,550 |
¥56,330 |
510 |
480 |
40 |
542 |
450 |
610 |
720 |
340 |
580 |
70 |
約42 |
38.1 |
| MCA-1HS 600 |
¥72,900 |
¥75,670 |
660 |
630 |
40 |
692 |
600 |
760 |
870 |
490 |
730 |
70 |
約72 |
58.9 |
| MCA-1HS 750 |
¥165,760 |
¥168,530 |
810 |
780 |
40 |
842 |
750 |
910 |
1020 |
600 |
880 |
70 |
約114 |
93.0 |
| MCA-2HS 300 |
¥39,190 |
¥41,960 |
軽荷重 |
360 |
330 |
40 |
392 |
300 |
460 |
570 |
250 |
430 |
70 |
約29 |
25.00 |
|
| MCA-2HS 350 |
¥43,600 |
¥46,370 |
410 |
380 |
40 |
442 |
350 |
510 |
620 |
300 |
480 |
70 |
約33 |
29.10 |
| MCA-2HS 450 |
¥50,970 |
¥53,740 |
510 |
480 |
40 |
542 |
450 |
610 |
720 |
340 |
580 |
70 |
約42 |
37.5 |
| MCA-2HS 600 |
¥69,490 |
¥72,270 |
660 |
630 |
40 |
692 |
600 |
760 |
870 |
490 |
730 |
70 |
約72 |
58.5 |
| MCA-2HS 750 |
¥164,500 |
¥167,270 |
810 |
780 |
40 |
842 |
750 |
910 |
1020 |
600 |
880 |
70 |
約114 |
93.0 |
|
| *適用ハンドルF。 |
|
|
 |
|
| 品名 |
税込価格 |
|
| Fマンホールハンドル |
¥2,860/組
(2本1組) |
|
|
|
| |
|
「お見積りフォーム」からのお申し込みの場合、
受付番号が表示されるまで、入力作業を行って下さい。 |
|
|
|
|
|
|
|
 |
| NO.240628 |
|